OCCASIONE : AMPIO MONOLOCALE VIA SANTA CATERINA RIF.007

In vendita
Appartamento
Valfurva (Santa Caterina)
Prezzo riservato
Descrizione
In una delle località più affascinanti dell’Alta Valtellina, a pochi passi dagli impianti sciistici e dai principali servizi, proponiamo in vendita grazioso e accogliente monolocale in posizione comoda e tranquilla.
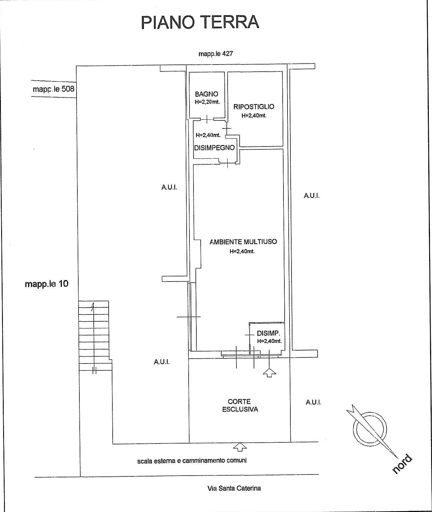
L’appartamento posto al piano terra della palazzina offre un ambiente unico con ampia zona giorne/notte, angolo cottura funzionale e bagno con doccia.
spazio esterno privato.
Ideale per chi cerca una soluzione pratica ma confortevole, perfetta sia come punto d’appoggio per le vacanze che come investimento.

Un’opportunità imperdibile per vivere la montagna tutto l’anno, tra sport, natura e relax.
Caratteristiche principali
Codice:
VIA SANTA CATERINA RIF 007
Città:
Valfurva (Santa Caterina)
Categoria:
Appartamento
Locali:
1
Bagni:
1
Mq:
40
Classe energetica:
A
Stato Immobile:
Buono
Posizione:
Montagna
Panorama:
Vista Monti
Lati Liberi:
1
Arredi:
Arredato
Tipo Soggiorno:
Soggiorno
Tipo Cucina:
Angolo Cottura
Riscaldamento:
Tele Riscaldamento
Acqua Calda:
Centralizzata
Infissi:
Legno Doppio Vetro
Mappa
Via Santa Caterina , 7 - Valfurva (SO)
Planimetrie
Richiedi informazioni
Invia
Cookie preference